fbpx

LAST REMAINING OFFICE 7A2 = 112 m2- FINEST LOCATION IN ROCKINGHAM CITY

Price

$2775 pcm + V/O's + gst

Address

6/2 Sepia Court, ROCKINGHAM WA 6168

Suburb

Rockingham

$2775 pcm + V/O's + gst
Offices
Description

LAST REMAINING OFFICE 7A2 = 112 m2- FINEST LOCATION IN ROCKINGHAM CITY

Offices - ROCKINGHAM WA

Rockingham Central is an exciting new development located in the heart of Rockingham on the corner of Council Avenue and Read Street.
Join Anytime Fitness, Zambrero, Dentistry Plus, HULC and Elders Real Estate.

Final tenancy remaining
New mixed use development
Premium accommodation and facilities including elevator

Commercial Office Space Available =
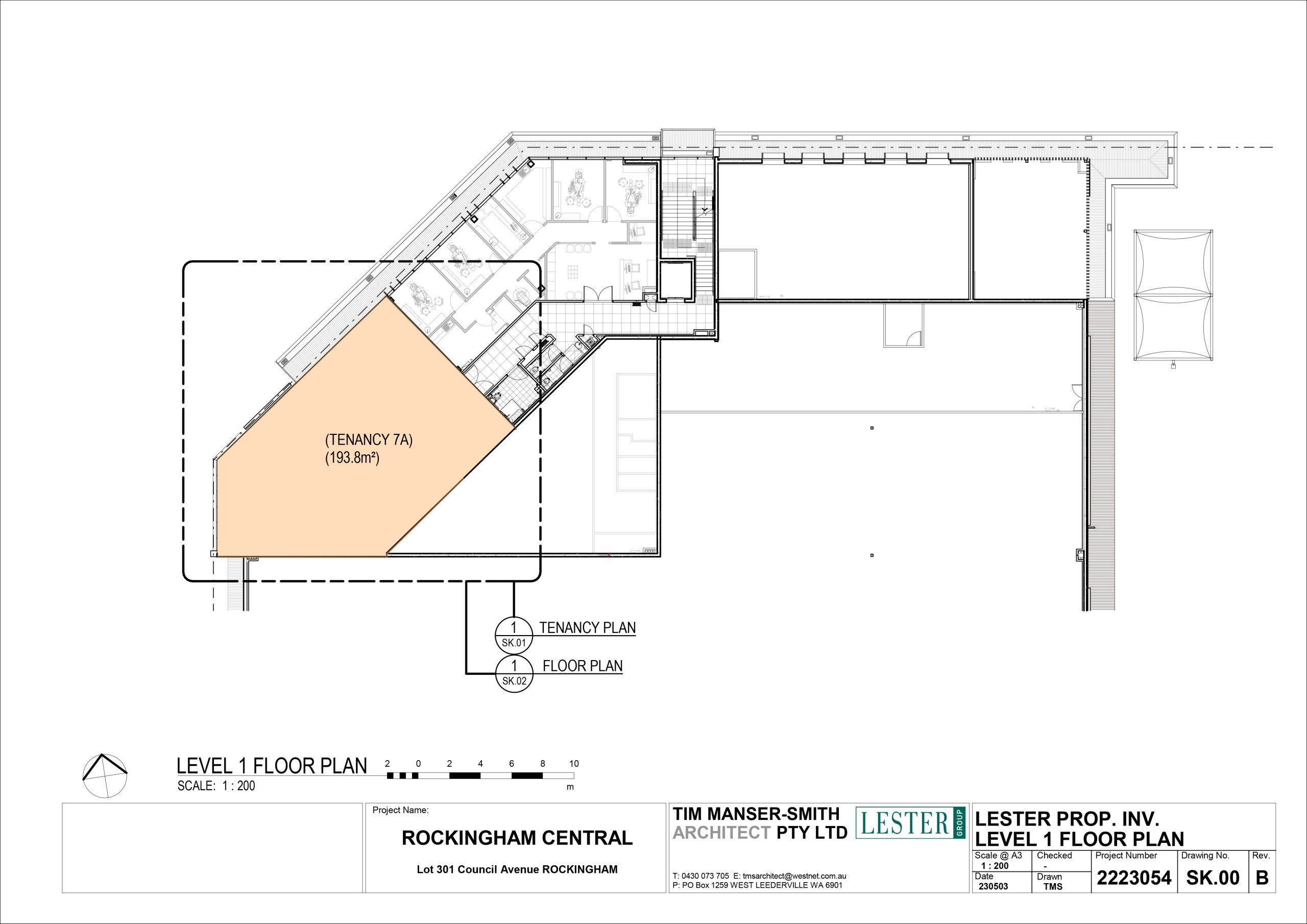
112.9 m2 (tenancy 7a2) – Rent $2,775 per calendar month + v/o’s est at $667 per calendar month, plus gst.
FINAL Office Suite, open plan layout with excellent natural light, lift and bathrooms.

This tenancy whilst airconditioned and carpeted has no fitout or furniture, the attached plans are provided in order that you can envisage how your new premium office space could look.

The existing tenants on level 1 are Dentistry Plus and HULC (Hand & Upper Limb Centre).

The location benefits from its immediate proximity to Rockingham Centre, a short distance to the Rockingham Train Station and unrivalled exposure, with an estimated 29,000 passing traffic on Read Street and 15,000 on Council Avenue. The surrounding amenities are endless with the area’s best bars, restaurants, cafes, food outlets and entertainment opportunities at your doorstep.

Ring Geraldine Kenny 0418915146 for details and to arrange an onsite inspection – don’t miss this final office suite.

Property Features
  • Offices
  • Floor Area is 112 m²
Contact Agents
Geraldine Kenny